About
News
Work
The Spark of Hudson
Grammercy 1
Hillside Overlook
Oratory/Flagship
Minotaur
North Haven Guest Cottage
Soho Pergola
Stop Over City
© 2025 GLO ARCHITECTURE & DESIGN PLLC
Project Information
Before
Exterior
Interior
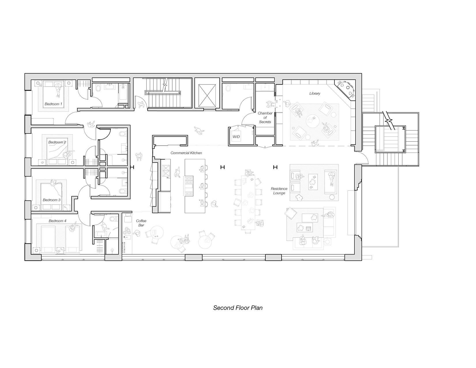
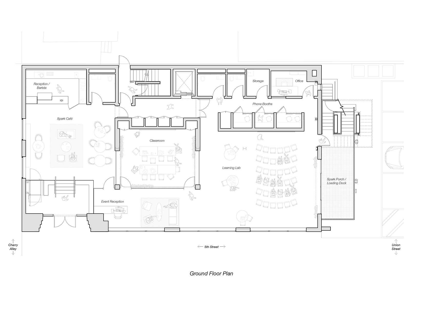
Floor Plans